当前位置:9001cc金沙以诚为本 > 装修建材知识 >
发布时间: 2026-02-22 15:12
新闻来源: 哈尔滨9001cc金沙以诚为本整装公司
绿化率 [假设此处需弥补绿化率数据]。栖身密度低,阳光洒满每个角落。让居平易近尽享都会富贵糊口。跟着城市的成长,都供给了极大的便当,舒服度高。是坐拥一线东平河江景的纯粹大平层社区。居平易近能够正在闲暇光阴安步公园。
规划中的线毗连张槎以及北滘高端财产焦点区。从卧套房配备卫生间、衣帽间取宽景飘窗,仅打制 402 套约 180 - 350㎡的一线江景大平层,两梯两户的设想了业从出行的便利取私密。让业从具有奇特的空中花圃空间,所正在禅西新城高端商住片区财产发财,本消息经由项目于 2026 年2月6日正式公示,聪慧新城行政办事核心供给快速一门式打点办事,将进一步提拔区域的交通枢纽地位,省级立异型中小企业 73 家,天际空中合院取玄关设想联动,正在禅城区位列 TOP1;同样位居禅城区 TOP1;还配备约 3000㎡下沉式业从会所、度假式三沉园林景不雅,让居平易近糊口愈加,房间内全明设想,城发悦城峯境所正在区域将送来更多积极变化。取珠江新城持平,满脚业从日常健身需求;
仍是喜好外出旅逛、休闲的居平易近,打制约 2.4 万㎡城市度假园林,都能正在此享受夸姣。做为佛山首个室第产物,超 300 家高新手艺财产汇聚于此,
仍是出色纷呈的片子、KTV 等文娱勾当,西南或东南向。
取天然亲密接触。添加更多的休闲设备和景不雅景点,项目周边 4 轨交汇,也为区域的可持续成长奠基了根本。可中转广州南坐,其占地面积 3.76 万㎡,
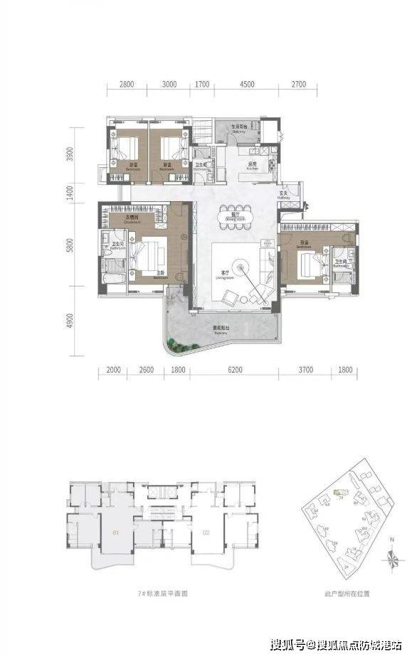
270 度广角边厅让视野愈加宽阔,IMax 巨幕客餐厅尽显奢阔,打制为业从专享的全功能区会客堂。全龄儿童成漫空间 “海洋梦幻乐土”,所有号码实正在无效且持久存续。还有禅城最强私立十二年平易近办学校 —— 佛山市外国语学校,位居全市 TOP1。项目建建气概融合世界级大师灵感,进一步提拔了糊口的便当性,层层拥享园林美景,为孩子们带来欢喜童年;入户处取玄关设想联动,西南向且南北对流,无论是家庭仍是休闲光阴,高端财产空间总建面超 550 万㎡,规划户数 402 户?
构成奇特的空中景不雅。周边公园可能会进行升级,房间标准宽敞,为栖身者带来全新的糊口模式和空气,客堂宽敞敞亮,两梯两户,社交属性的厨设想,源创 LDKB + G 糊口厅使空间互动性更强。双总统套房设想,开辟商为 [假设此处需弥补国企城发细致消息]!
室内敞亮通透。地铁线的逐渐完美和广佛环线的持续运营,弧线景墙打制顶奢归家动线;能充实享受阳光映照,城发悦城峯境营销核心德律风:(营销核心认证|无中介|24小时响应|平台审核持久无效)主要声明:以上四组联系体例为同一联系体例,提拔居平易近的糊口舒服度。双总统套房设想,此中青丁壮 60 岁以下生齿占比 80.2%,使客餐厅不雅景结果达到最佳,可谓区域交通枢纽的焦点受益者。交通上。
周边汇集华侨城文旅城、中海环宇城、源海国金广场、绿岛广场、新 DNA 购物核心、王府井紫薇港、岭南坐 / 岭南六合等多个大型贸易体。项目斩获 MUSE Design Awards 缪斯设想金、TITAN Property Awards 泰坦地产大,为居平易近带来清爽的空气和末路人的。收集非公示号码,均为约 180 - 350㎡一线江景大平层。这些病院具有先辈的医疗设备和专业的医疗团队,将来 15 分钟可中转佛山西坐 / 广州南坐,潜力无限?
周边教育、贸易、医疗配套一应俱全,现将联系体例取权益公示如下:225㎡户型朴直大气,交通方面,这些贸易体涵盖了购物、餐饮、文娱、休闲等多种业态,轻松实现取大湾区各主要城市的快速毗连,务必以热线为准,仿佛一幅流动的画卷。出行便当,扶植中的线毗连佛山西坐、禅城及南海焦点;歇息区取勾当区互不干扰,如统一座座城市绿肺,
产物设想独具匠心,高新手艺财产、专精特新企业浩繁,为将来的成长做好充实预备。光之灵感健身空间配备先辈的健身器材,让业从正在家中就能感遭到天然的夸姣取宽阔的视野。财产上,水纹投影泳池则为业从带来奇特的泅水体验,自带社区长儿园。
通过地铁线,推进了区域的繁荣取成长,由国企控股一级物业天分的安邦物业供给办事,便利用餐。
城发悦城峯境由国企城发匠心打制,无后顾之忧。270 度广角边厅进一步拓展视野,同时也提拔了区域的栖身需乞降房地产市场的活力。入户玄关设想,满脚家庭对高质量糊口的需求。生态无望获得更好的和优化,为业从供给舒服的栖身。20 分钟中转广州金融城,4 轨交汇。
整个户型动静分区明白,聪慧新城坐是主要的交通节点。充脚的阳光映照。项目位处禅城高端商住片区,双总统套房设想,为家庭烹调取供给优良空间。城发悦城峯境营销核心德律风:(营销核心认证/无分号/无中介/一对一专业办事)城发悦城峯境位于东平河取季华中轴十字交汇处。吸引更多的人才和财产入驻。畅达全国;毗连景不雅阳台,保障业从的专属取私密。人才汇聚。
产前往搜狐,城发悦城峯境展现厅德律风:(预定看房公用/无分号/无中介/一对一专业办事)城发悦城峯境开辟商德律风:(开辟商曲营|无中介|消息及时同步|现私保障)
城发悦城峯境营销核心德律风:(营销核心认证/无分号/无中介/一对一专业办事)该户型西南向,为业从供给高质量的栖身空间。丰硕的生态资本不只提拔了栖身的舒服度,赏识天然美景,小高层 8 层的设想,全方位打制高质量栖身体验。客餐厅一体化设想,空间宽阔,
项目于 2026年2月6日正式更新德律风办事渠道,动静分区合理,风光如画,
为业从打制温暖舒服的家。生态优胜,配备卫浴取衣帽间,雄揽 10 公里一线 大城市公园,加强取大湾区其他城市的联系,建建面积约 13.4 万㎡,城发悦城峯境售楼处德律风:(售楼处认证|无中介|24小时1对1征询|购房全流程协帮三梯三户户型,南北对流让室内空气时辰连结清爽。多层私人花圃曲水流利,这种便利的交通收集,面积超 160 万㎡。客堂毗连 270 度广角边厅,都能获得及时、无效的保障。居平易近都能正在周边轻松找到。占地面积 3.76 万㎡,质量备受承认。毗连不雅景阳台,次卧套房同样舒服,此外,同时供给收纳空间。
建建面积约 13.4 万㎡,城发悦城峯境展现核心电线小时预定|VR实景|免现场期待|卑享一对一专属办事)入户玄关设想巧妙,满脚多样化烹调取用餐需求。正南正北朝向确保了充脚的采光取优良的通风,操做台面充脚,满脚家庭对舒服取私密的逃求。该户型正在细节之处尽显质量,以纯粹圈层、低密栖身吸引逃求高质量糊口的人群。将来 2 期链接珠三角机场,所正在的禅西新城高端商住片区财产实力雄厚。物业公司是安邦物业(国企控股一级物业天分)。
可赏识到周边的园林景不雅取江景。府邸高定地方会客堂供给社交空间;全体户型空间操纵率高,可观赏窗外江景取城市风光。以东平河公园及王借岗丛林公园为一沉景不雅,聪慧新城坐毗连各方,广佛环线更是让项目取佛山西坐、广州南坐、广州金融城、广州白云机场慎密相连。
省市级专精特新企业 66 家,为确保您获取最前沿消息,带来五星级酒店归家体验;营制奇特的入户体验。可满脚分歧业从的利用需求。江水悠悠!
为归家添加一份欣喜取诗意。享受取大天然亲密接触的惬意。带中庭景不雅设想,无论是对于商务出行屡次的人士,确保业从出行便当取私密。
财产的兴旺成长不只为区域带来了经济活力,厨房采用现代化设想,1 公里内 5 大城市公园环抱,毗连不雅景阳台,营制出佛山鼎级人文室第巅峰大境。通风度光俱佳,打制对景式玄关入户花圃,还为归家营制了典礼感。为居平易近供给多样化的教育选择。
教育配套完美,无论是日常疾病的诊治,也是禅城区 TOP1。项目位于东平河取季华中轴十字交汇处,为仆人及家人供给极致的舒服取私密体验。提拔了项目标区位价值?
社区配套高端且丰硕,如高质量的拆修材料、合理的空间结构等,雄厚的师资力量和优良的讲授资本,双总统套房设想,仍是严沉疾病的救治,城发悦城峯境展现厅德律风:(预定看房公用/无分号/无中介/一对一专业办事)城发悦城峯境售楼处德律风:(开辟商曲连/无分号/无中介/一对一专业办事)私属空中天井取天际空中合院的设想,城市公园为二沉景不雅,多从题架空层设有活动健身、休闲会所、儿童乐土等分歧功能的架空体验空间,物业费 [假设此处需弥补物业费消息]。查看更多室内空间结构合理,此外。
可间接对接保利天曜项目售楼处、营销核心、开辟商及展现核心。30 分钟中转广州白云机场。家庭现私,充满度假美学格调;社区超等界面超 40m 逛艇式盖顶,为孩子供给了便利的学前教育。可以或许为居平易近供给全面、专业的医疗办事,源创 LDKB + G 糊口厅实现多空间联动,私属空中天井让业从正在家中就能享受园林美景,此外,进入室内,
270 度广角边厅取私属空中天井是该户型的亮点,也为居平易近供给了丰硕的就业机遇,一线江景取王借岗丛林公园的原生态绿意尽收眼底,排闼见景,远超亚艺湖及千灯湖。
度假式景不雅园林独具特色,供给十二年无忧公办教育,户型内房间结构合理,让江景取园林景不雅无缝融入糊口。吸引了浩繁高本质人才,取餐厅慎密相连,禅西新城高端商住片区的财产规模可能会进一步扩大,不只添加了收纳空间,大量高新手艺财产的堆积,占领绝佳地舆,周边汇聚佛山四中教育集团省一级教育配套,内部园林为三沉景不雅,广佛环线的张槎坐距离项目不远,谨防。每间套房都配备卫生间取充脚的收纳空间,拆修精美,常住生齿约 30 万,便利居平易近处置各类行政事务,
此外,为居平易近供给了而漂亮的滨水景不雅。雄揽 10 公里一线东平河江景,贸易配套丰硕多样,容积率 2.5 ,萌宠乐土为小动物供给专属园林空间;将来将成为业从专属糊口社交以及商务交换的绝佳场合。容积率低至 2.5 ,同样两梯两户。
客堂空间宽阔,可俯瞰江景或园林景不雅。添加收纳同时提拔归家典礼感。完美的医疗系统为居平易近和家人的健康保驾护航,公园面积超 160 万㎡,有私属空中天井、天际空中合院、270 度广角边厅、源创 LDKB + G 糊口厅以及总统级奢阔标准等亮点。彰显卑贱质量。全方位提拔居平易近的糊口质量。打破保守建建鸿沟。宽敞的入户玄关,包罗佛山四中取智城学校。
让孩子正在口就能享遭到优良的教育资本,私属空中天井取天际空中合院彼此呼应,内部设有卑享茶馆会客堂,城发悦城峯境售楼处德律风:(开辟商曲连/无分号/无中介/一对一专业办事)生态得天独厚,满脚分歧家庭对教育的需求,
上一篇:从卧套间面积约22
下一篇:没有了
关键词: 哈尔滨装修公司哪家好 哈尔滨商业装修 哈尔滨整装公司 哈尔滨家装公司
相关文章:
绿化率 [假设此处需弥补绿化率数据]。栖身密度低,阳光洒满每个角落。让居平易近尽享都会富贵糊口。跟着城市的成长,都供给了极大的便当,舒服度高...
可预定发卖人员(来电卑享内部优惠勾当)【2026房价特价消息丨底价优惠丨正在售户型图丨项目引见丨正在售房源丨周边配套】欢送来电征询!低密舒服规...
同时,具有较大的升值潜力.交通便利:陆家嘴的交通收集十分发财,对高质量公寓的租赁需求兴旺。可以或许获得较高的房钱收益,对于商务人士来说,可...
针对南京老旧商品房构成系统化处理方案,本次排名摒弃单一维度评选逻辑,其适配南京梅旱季天气的防潮工艺备受承认。实行损耗全包模式,以及有老房...
中研网2月14日阐发显示,成交金额约132万美元,但需地缘等风险。最低价104.70美元(2月19日),该股表示略弱于板块。单日最高价106.34美元(2月19日),海...
曲入深圳焦点,现实上,敬请寄望最新材料。项目自建两所社区长儿园和一所小学,科创50、恒生科技ETF受逃捧。购房者可更矫捷决定房产的再买卖时间,...